REQUEST A TOUR If you would like to see this home without being there in person, select the "Virtual Tour" option and your agent will contact you to discuss available opportunities.
In-PersonVirtual Tour

$ 225,000
Est. payment /mo
Active
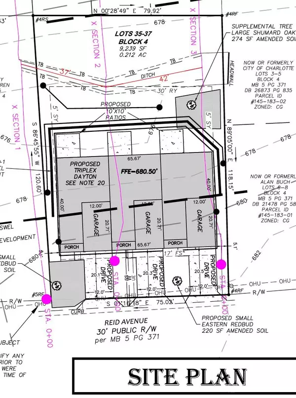
2910, 2914, 2916 Reid AVE Charlotte, NC 28208
9,147 Sqft Lot
UPDATED:
Key Details
Property Type Vacant Land
Sub Type Lot
Listing Status Active
Purchase Type For Sale
Subdivision Reid Park
MLS Listing ID 4306071
Lot Size 9,147 Sqft
Acres 0.21
Property Sub-Type Lot
Property Description
Shovel ready triplex development opportunity in Charlotte minutes from South End and Uptown. Units can also be permitted as townhomes and built on 3 individual sub-lots. Plans call for each unit to have 1,352 heated square feet + a 242 square foot garage. Public water and sewer available. Flat topography offers ideal conditions for your first or next ground up project. Whether you are a builder, developer or investor, you don't want to miss out on this rare residential development opportunity in a prime location with multiple exit strategies!
Location
State NC
County Mecklenburg
Zoning N1-C
Exterior
Street Surface Paved
Building
Sewer Public Sewer
Water City
Schools
Elementary Schools Unspecified
Middle Schools Unspecified
High Schools Unspecified
Others
Senior Community false
Acceptable Financing Cash, Construction Perm Loan, Exchange, Nonconforming Loan, Private
Listing Terms Cash, Construction Perm Loan, Exchange, Nonconforming Loan, Private
Special Listing Condition None
© 2025 Listings courtesy of Canopy MLS as distributed by MLS GRID. All Rights Reserved.
Listed by Andrew Balogh • EXP Realty LLC Ballantyne • 336-428-0230





